Lot 77 Abergeldie Estate

Duplex Homes

Ultimate Modern Living

Discover the perfect blend of comfort and style with the Lot 77 Duplex House Package.

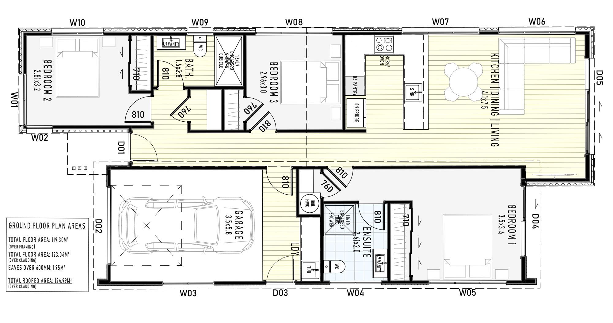
There are four bedrooms in this thoughtfully designed home, as well as three modern bathrooms. The generous 210 square metres of living area makes this a great home for small families or couples who want extra space for guests or hobbies.

On the ground floor, there is an open-plan kitchen and dining area, seamlessly connected to a relaxing patio through elegant sliding doors.

You'll also find a separate living room, perfect for cozy evenings or small gatherings.

The upper level is dedicated to bedrooms with the master bedroom featuring an ensuite bathroom and walk-in wardrobe, as well as three additional bedrooms. Storage is conveniently located on both top and bottom floors.

Floor Plan

Features

Floor Area: 206m2
  • Garage: Single Garage
  • Outdoor Spaces: Floor-level patio, back and front yard
  • Living Spaces : Floor-level open-plan kitchen and dining room and sliding doors from both kitchen and living room to the patio
  • Bedrooms: Master bedroom with ensuite and walk-in wardrobe plus three additional bedrooms, each with their own closet
  • Bathrooms: Single toilet on floor level Full bathroom on the upper level, including toilet, bath, and shower. Master ensuite with shower and toilet
  • Additional Features:Laundry located on the back wall of the single garage, storage cupboards on both floor and upper levels

Interior Colour Options

When choosing a colour palette for your house and land package at Abergeldie Estate, you have the flexibility to personalise your home with one of our four interior colour options: Champagne, Chestnut, Steel Grey, and Tobiano.

Each palette has been selected to ensure a cohesive look throughout your home. These options will influence the colours of the carpet, flooring, kitchen bench, kitchen tile splash-back, cabinets, vanity, wall colour, and paint trim, allowing you to create a modern and tasteful space.

Let us help you bring your new home to life by choosing the palette that speaks to you!

 
Champagne
Chestnut
Steel Grey
Tobiano